Готовые проекты домов
Мы строим дома, как по типовым, так и по индивидуально разработанным проектам, учитывая любые пожелания заказчика
2
Количество этажей
Комнат
5
Площадь
156,42 кв.м
Размер
11х7,63
проект к151
1 этаж
1 - Тамбур, 3.0 кв. м
2 - Гардероб, 2.8 кв. м
3 - Холл, 3.74 кв. м
4 - Санузел, 3.2 кв. м
5 - Тех.помещение, 6.48 кв. м
6 - Гостиная, 18.47 кв. м
7 - Кухня, 6.12 кв. м
8 - Терраса, 14.94 кв. м
9 - Крыльцо, 4.56 кв. м
План дома
2 этаж
1 - Холл, 3.7 кв. м
2 - Санузел, 3.8 кв. м
3 - Спальня, 11.29 кв. м
4 - Спальня, 13.43 кв. м
5 - Балкон, 14.94 кв. м
проект к151
1
Количество этажей
Комнат
4
Площадь
109,8 кв.м
Размер
12х9
проект к134
1 - Кухня-гостиная, 29.0 кв. м
2 - Тех.помещение, 4.5 кв. м
3 - Тамбур, 5.76 кв. м
4 - Санузел, 5.78 кв. м
5 - Спальня 1, 1.71 кв. м
6 - Спальня 2, П.71 кв. м
7 - Спальня 3, 12.58 кв. м
8 - Холл, 61 кв. м
План дома
проект к134
2
Количество этажей
Комнат
4
Площадь
172,48 кв.м
Размер
11,6х10,9
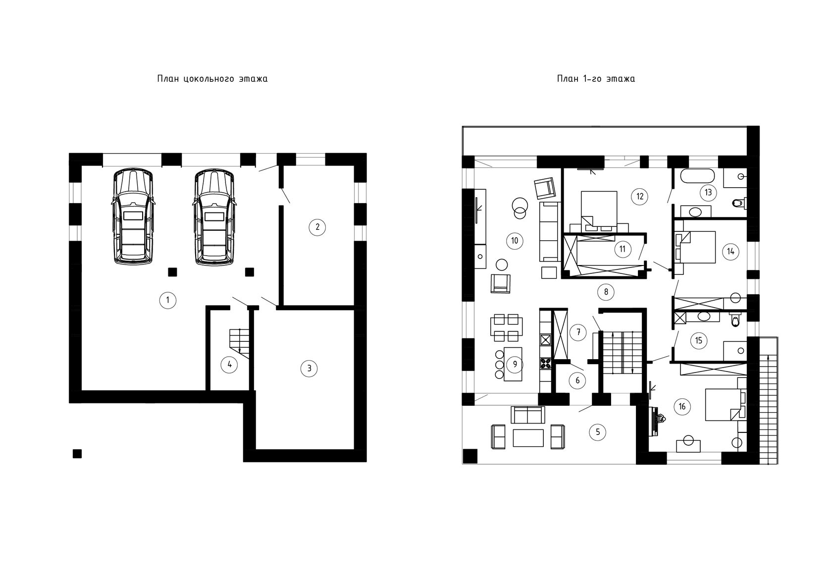
проект к263
1 этаж
1 - Прихожая, 1.8 кв. м
2 - Бойлерная, 3.23 кв. м
3 - Коридор, 5.25 M2
4 - Гардероб, 4.76 кв. м
5 - Санузел, 2.85 кв. м
6 - Кладовая, 3.23 кв. м
7 - Кухня-гостиная, 44 кв. м
2 этаж
8 - Холл, 11.91 кв. м
9 - Спальня 1, 13.3 кв. м
10 - Санузел, 11.29 кв. м
11 - Спальня 2, 12.31 кв. м
12 - Балкон, 4.2 кв. м
План дома
проект к263
1
Количество этажей
Комнат
5
Площадь
122,91 кв.м
Размер
15,6х13,8
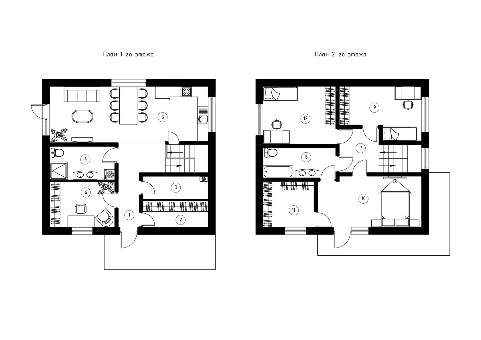
проект к117
1 – Прихожая 6,24 м2
2 – Бойлерная 3,69 м2
3 – Санузел 3,43 м2
4 – Кухня 9,24 м2
5 – Гостиная 23,97 м2
6 – Коридор 8,34 м2
7 – Спальня 11,05 м2
8 – Гардеробная 3,06 м2
9 – Санузел 4,85 м2
10 – Спальня 10,7 м2
11 – Спальня 10,72 м2
12 – Кладовая 1,89 м2
13 – Крыльцо 3,4 м2
14 – Терраса 7,65 м2
План дома
проект к117
1
Количество этажей
Комнат
4
Площадь
71,64 кв.м
Размер
8,55х7,2
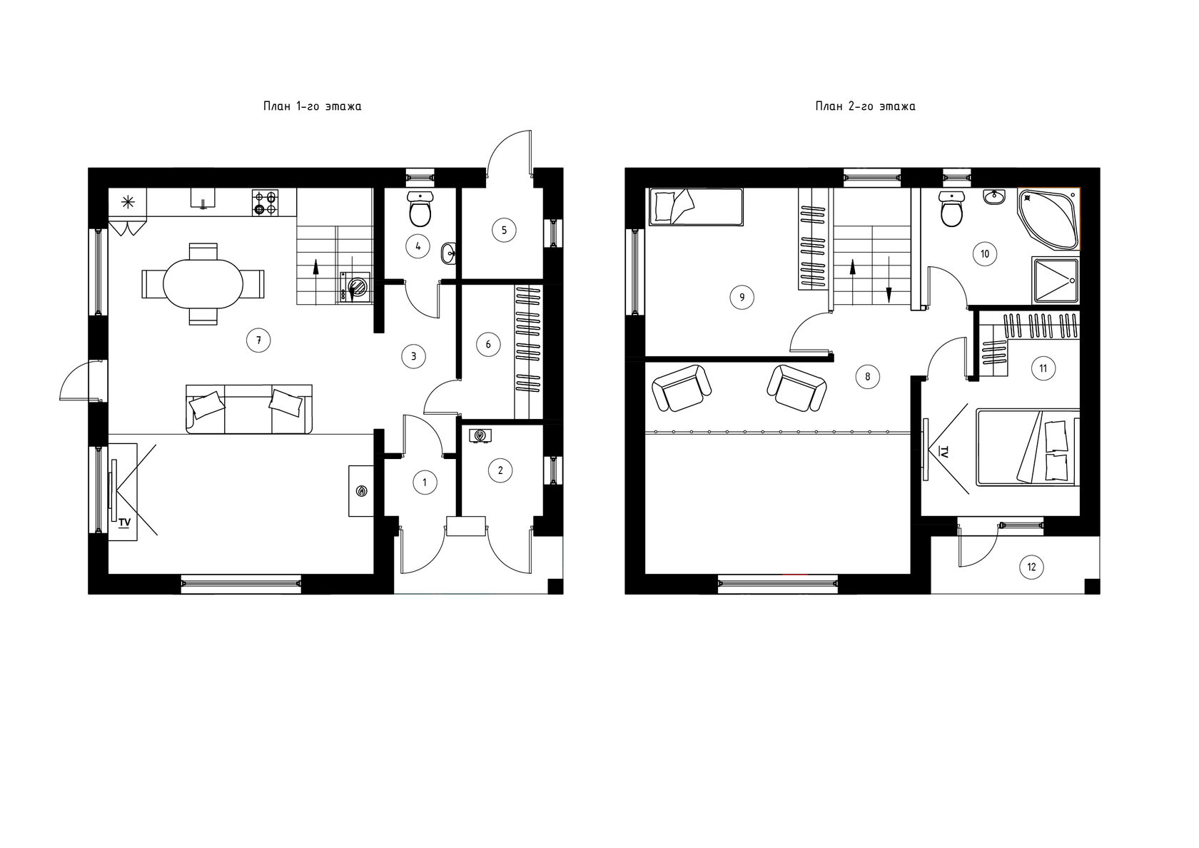
проект к274
1 - Прихожая, 4.05 кв. м
2 - Коридор, 4.29 кв. м
3 - Кухня-гостиная, 15 кв. м
4 - Санузел, 4.5 кв. м
5 - Спальня 1, 7.2 кв. м
6 - Тех.помещение, 2.21 кв. м
7 - Спальня 2, 7.65 кв. м
8 - Крыльцо, 10.9 кв. м
План дома
проект к274
1
Количество этажей
Комнат
5
Площадь
380,87 кв.м
Размер
8,55х7,2
проект к028
1 - Тамбур, 9.90 кв. м
2 - Гардеробная, 4.2 кв. м
3 - Гардеробная, 9.48 кв. м
4 - Кладовая, 9.44 кв. м
5 - Кухня-гостиная, 59.92 кв. м
6 - Общий санузел, 10.44 кв. м
7 - Постирочная, 9.3 кв. м
8 - Холл, 33.99 кв. м
9 - Кабинет, 9.88 кв. м
10 - Детская 1, 13.0 кв. м
11 - Детская 2, 12.58 кв. м
12 - Санузел, 6.47 кв. м
13 - Гардеробная, 4.64 кв. м
14 - Мастер-спальня, 14.31 кв. м
15 - Тех.помещение, 10.29 кв. м
16 - Гараж, 52.51 кв. м
17 - Крыльцо, 7.74 кв. м
18 - Teppaca, 40.5 кв. м
План дома
проект к028
2
Количество этажей
Комнат
5
Площадь
438,0 кв.м
Размер
8,55х7,2
проект к027
1 этаж
1 - Гараж, 97.5 кв. м
2 - Бойлерная, 26.0 кв. м
3 - Тех.помещение, 36.6 кв. м
4 - Лестница, 7.9 кв. м

2 этаж
5 - Teppaca, 26.0 кв. м
6 - Тамбур, 3.0 кв. м
7 - Прихожая, 5.6 кв. м
8 - Коридор, 1.0 кв. м
9 - Кухня, 16.4 кв. м
10 - Гостиная, 30.9 кв. м
11 - Гардероб, 8.2 кв. м
12 - Спальня 1, 19.0 кв. м
13 - Санузел 1, 9.0 кв. м
14 - Спальня 2, 16.5 кв. м
15 - Санузел 2, 9.0 кв. м
16 - Спальня 3, 22.0 кв. м
План дома
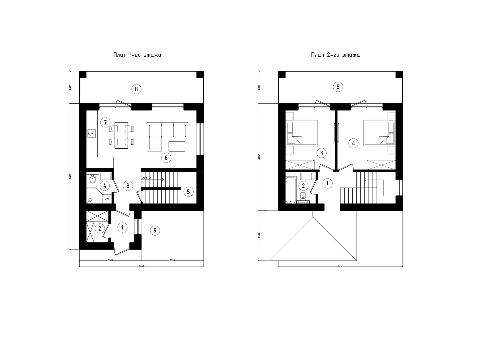
проект к027
1
Количество этажей
Комнат
3
Площадь
124,28 кв.м
Размер
11,6х10,9
проект к013
1 - Крыльцо, 6.7 кв. м
2 - Тамбур, 4.1 кв. м
3 - Тех.помещение, 4. кв. м
4 - Холл, 9.3 кв. м
5 - Кухня-гостиная, 33.0 кв. м
6 - Спальня 1, 10.0 кв. м
7 - Санузел, 5.5 кв. м
8 - Спальня 2, 14.9 кв. м
9 - Терраса, 16.5 кв. м
План дома
проект к013
2
Количество этажей
Комнат
5
Площадь
185,07 кв.м
Размер
11х7,63
проект к179
1 этаж
1 - Прихожая, 8.28 кв. м
2 - Гардероб, 5.55 кв. м
3 - Бойлерная, 4.81 кв. м
4 - Санузел, 7.03 кв. м
5 - Кухня-гостиная, 28.07 кв. м
6 - Кабинет, 9.62 кв. м

2 этаж
7 - Лестничная клетка, 5.63 кв. м
8 - Санузел, 7.02 кв. м
9 - Спальня 1, 12.28 кв. м
10 - Спальня 2, 16.74 кв. м
11 - Гардероб, 7.54 кв. м
12 - Спальня 3, 13.63 кв. м
План дома
проект к179